Inicio         Planillas de cálculo para suscribir Planillas de datos DEMO
 

Tutorials Caesar II list

Lista de tutoriales de Caesar II

Elenco dei tutorial di Caesar II

he following is a tutorials of Caesar II list, pipeline stress analysis software that tests systems against numerous international standards. It is not finite element analysis (FEA) software, but instead uses a linear model built with elements connected by nodes.

La siguiente es una lista de tutoriares de Caesar II, software de análisis de tensión de cañerías que evalúa los sistemas según numerosos estándares internacionales. No es un software de análisis de elementos finitos (FEA), sino que utiliza un modelo lineal construido con elementos conectados por nodos.
Quello che segue è un elenco dei tutorial di Caesar II, software di analisi dello stress della pipeline che testa i sistemi rispetto a numerosi standard internazionali. Non è un software di analisi agli elementi finiti (FEA), ma utilizza invece un modello lineare costruito con elementi collegati da nodi.

 

Tutorials list

Listado de tutoriales

Elenco di tutorial

Introducción

Introducción

Baje este tutorial==> <== Baje este tutorial

In this tutorial we will see how CAESAR II appears when we open it. We will see the window from where all the tasks are started and we will go through its options (open/create an input file, review load cases, review results or access any auxiliary module such as the WRC 107/297 processor or the ISOGEN tension isometric module ).

En este tutorial veremos como se presenta CAESAR II cuando lo abrimos. Veremos la ventana desde donde se inician todas las tareas y recorreremos sus opciones (abrir/crear un archivo de entrada, revisar casos de carga, revisar resultados o acceder a cualquier módulo auxiliar como el procesador WRC 107/297 o el módulo isométrico de tensión ISOGEN).

In questo tutorial vedremo come appare CAESAR II quando lo apriamo. Vedremo la finestra da cui vengono avviate tutte le attività e passeremo attraverso le sue opzioni (apri/crea un file di input, rivedi i casi di caricamento, rivedi i risultati o accedi a qualsiasi modulo ausiliario come il processore WRC 107/297 o la tensione ISOGEN modulo isometrico).

Ejercicio 1

Ejercicio 1

Baje este tutorial==><== Baje este tutorial

This exercise will give us practice with pipe input and will introduce the various tool alternatives that will increase modeling performance. The results will also be investigated and reviewed to see how the piping system behaves and how to correct any problems that may arise during design.

Este ejercicio nos proporcionará una práctica con la entrada de tuberías e introducirá las distintas alternativas de las herramientas que aumentarán el rendimiento en la creación de modelos. También se investigarán y revisarán los resultados para ver cómo se comporta el sistema de tuberías y cómo corregir cualquier problema que pueda surgir durante el diseño.

Questo esercizio ci consentirà di esercitarci con l'input pipe e introdurrà le varie alternative di strumenti che aumenteranno le prestazioni di modellazione. I risultati saranno anche studiati e rivisti per vedere come si comporta il sistema di tubazioni e come correggere eventuali problemi che possono sorgere durante la progettazione.

Ejercicio 2

Ejercicio 2

Mande un mail para obtener el tutorial==><== Mande un mail para obtener el tutorial

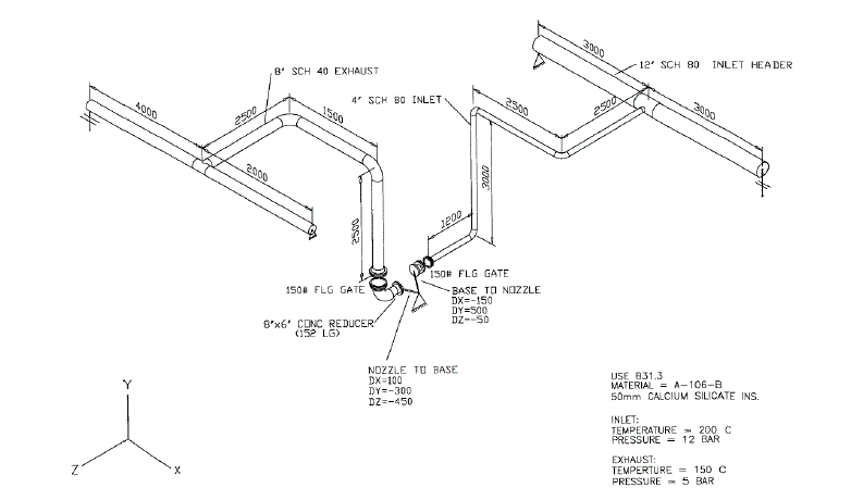
This exercise demonstrates how to incorporate supports in CAESAR II, indicating the loads, restrictions, and operating cases to which we will submit the system. The results will be analyzed with the report that the program generates and we will see with a brief example how to solve problems in the supports, such as "take off".

Con este ejercicio se demuestra el modo de incorporar soportes en CAESAR II, indicando las cargas, las restricciones y los casos de operación a los que someteremos al sistema. Se analizarán los resultados con el informe que genera el programa y veremos con un breve ejemplo como solucionar problemas en los soportes, tales como el "despegue".

Questo esercizio dimostra come incorporare i supporti in CAESAR II, indicando i carichi, le restrizioni e i casi operativi a cui sottoporremo il sistema. I risultati verranno analizzati con il report che il programma genera e vedremo con un breve esempio come risolvere i problemi nei supporti, come il "take off".

Ejercicio 3

Ejercicio 3

Mande un mail para obtener el tutorial==><== Mande un mail para obtener el tutorial


This exercise will develop what was seen in the previous ones and will introduce the following new procedures:
- Combination of piping models
- Rigid Construction Elements
- CNode Connections
- Analysis NEMA SM23

Este ejercicio desarrollará lo visto en los anteriores e introducirá las siguientes nuevos procedimientos:
- Combinación de modelos de tuberías
- Elementos de Construcción Rígidos
- Conexiones CNode
- Análisis NEMA SM23

Questo esercizio svilupperà quanto visto nei precedenti e introdurrà le seguenti nuove procedure:
- Combinazione di modelli di tubazioni
- Elementi costruttivi rigidi
- Connessioni CNode
- Analisi NEMA SM23

Ejercicio 4

Ejercicio 4

Mande un mail para obtener el tutorial==><== Mande un mail para obtener el tutorial

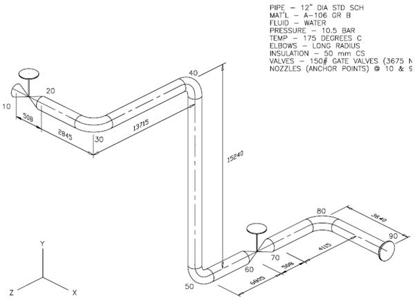
This exercise demonstrates multiple load cases can be used along with multiple operating conditions in order to evaluate various “what if” scenarios. In addition, the API 610 module is used to evaluate loads on pumps. Other features shown include naming nodes and naming load cases to make reviewing the results easier.

Este ejercicio demuestra que se pueden usar múltiples casos de carga junto con múltiples condiciones de operación para evaluar varios escenarios hipotéticos. Además, el módulo API 610 se utiliza para evaluar cargas en bombas. Otras características que se muestran incluyen nombrar nodos y nombrar casos de carga para facilitar la revisión de los resultados.

Questo esercizio dimostra che è possibile utilizzare più casi di carico insieme a più condizioni operative per valutare vari scenari "what if". Inoltre, il modulo API 610 viene utilizzato per valutare i carichi sulle pompe. Altre funzionalità mostrate includono la denominazione dei nodi e la denominazione dei casi di carico per semplificare la revisione dei risultati.

Ejercicio 5

Ejercicio 5

Mande un mail para obtener el tutorial==><== Mande un mail para obtener el tutorial

This exercise develops various workflow sequences: "run, test, modify" to determine system acceptance. Each of the system assessments will develop another aspect of CAESAR II. Once the system is acceptable, custom reports and stress isometrics are generated.

Con este ejercicio se desarrollan varias secuencias de flujo de trabajo: "ejecutar, evaluar, modificar" para determinar la aceptación del sistema. Cada una de las evaluaciones del sistema desarrollará otro aspecto de CAESAR II. Una vez que el sistema sea aceptable, se genera los informes personalizados y los isométricos de estrés.

Questo esercizio sviluppa varie sequenze del flusso di lavoro: "esegui, prova, modifica" per determinare l'accettazione del sistema. Ciascuna valutazione del sistema svilupperà un altro aspetto di CAESAR II. Una volta che il sistema è accettabile, vengono generati report personalizzati e isometrici dello stress.

Ejercicio 6

Ejercicio 6

Mande un mail para obtener el tutorial==><== Mande un mail para obtener el tutorial

In this exercise we have an FRP cooling water manifold, with successive reductions ranging from a diameter of 1800 mm to 1500 mm, to 1200 mm and to 1050 mm in diameter. In addition we have several derivations of 750 mm in diameter. By modeling this system we will have the opportunity to explore the various capabilities of the CAESAR II program for analyzing FRP pipes. In addition, we will apply static seismic loads, illustrating methods that use uniform loads and load combinations.

En este ejercicio tenemos un colector de agua de enfriamiento de FRP, con sucesivas reducciones que van de un diámetro de 1800 mm a 1500 mm, a 1200 mm y a 1050 mm de diámetro. Además tenemos varias derivaciones de 750 mm de diámetro. Al modelar este sistema tendremos la oportunidad de explorar las distintas capacidades del programa CAESAR II para analizar tuberías de FRP. Además, aplicaremos cargas sísmicas estáticas, ilustrando métodos que utilizan cargas uniformes y combinaciones de carga.

In questo esercizio abbiamo un collettore acqua di raffreddamento FRP, con riduzioni successive che vanno da un diametro di 1800 mm a 1500 mm, a 1200 mm ea 1050 mm di diametro. Inoltre abbiamo diverse derivazioni da 750 mm di diametro. Modellando questo sistema avremo l'opportunità di esplorare le varie capacità del programma CAESAR II per l'analisi dei tubi in FRP. Inoltre, applicheremo carichi sismici statici, illustrando metodi che utilizzano carichi uniformi e combinazioni di carico.

Ejercicio 7

Ejercicio 7

Mande un mail para obtener el tutorial==><== Mande un mail para obtener el tutorial

In this exercise we will model a buried gas transmission pipeline. We will see how to work with the section of pipes underground and we will also carry out a fatigue analysis. We will also explore the requirements of the B31.8 Design Code. The model consists of a 36" collector, an 8" branch and a 2" bypass, in the immediate vicinity of a natural gas compressor station. The line is buried, from a distance long enough to be considered with an anchor virtual acceptable.

En este ejercicio modelaremos una cañería de transmisión de gas enterrada. Veremos cómo trabajar con la sección de cañerías bajo tierra y además realizaremos un análisis de fatiga. También exploraremos los requisitos del Código de diseño B31.8. El modelo consiste en un colector de 36", un ramal de 8" y un bypass de 2", en las inmediaciones de una estación compresora de gas natural. La línea viene enterrada, desde una distancia lo suficientemente larga como para considerarla con un anclaje virtual aceptable.

In questo esercizio modelleremo un gasdotto interrato per il trasporto del gas. Vedremo come lavorare con la sezione delle tubazioni interrate ed effettueremo anche un'analisi a fatica. Esploreremo anche i requisiti del codice di progettazione B31.8. Il modello è costituito da un collettore da 36", una derivazione da 8" e un bypass da 2", nelle immediate vicinanze di una stazione di compressione del gas naturale. La linea è interrata, da una distanza sufficientemente lunga da poter essere considerata con un ancoraggio virtuale accettabile.

Ejercicio 8

Ejercicio 8

Mande un mail para obtener el tutorial==><== Mande un mail para obtener el tutorial

This exercise models an offshore jacketed riser, which is modeled in stages, each stage representing a continuous length of pipe from bottom to surface. The two center tubes (6" and 4") are enclosed in the deck tube (18"). The center tubes are placed in the deck through the use of internal supports (braces). In CAESAR II, these supports can be modeled using dummy rigid elements, connected to the jacket by using CNODES.

En este ejercicio se modela un tubo colector ascendente encamisado en alta mar, que se modela en etapas, donde cada una de ellas representa un tramo continuo de tubería desde el fondo hasta la superficie. Los dos tubos centrales (6" y 4") están encerrados en el tubo de cubierta (18"). Los tubos centrales se colocan en la cubierta mediante el uso de soportes internos (riostras). En CAESAR II, estos soportes pueden modelarse usando elementos rígidos ficticios, conectados a la chaqueta mediante el uso de CNODES.

Questo esercizio modella un riser incamiciato offshore, modellato in più fasi, ciascuna delle quali rappresenta un tratto continuo di tubo dal fondo alla superficie. I due tubi centrali (6" e 4") sono racchiusi nel tubo del ponte (18"). I tubi centrali sono posizionati nel ponte attraverso l'uso di supporti interni (bracci). In CAESAR II, questi supporti possono essere modellati utilizzando elementi rigidi fittizi, collegati alla giacca tramite CNODES.

Ejercicio 9

Ejercicio 9

Mande un mail para obtener el tutorial==><== Mande un mail para obtener el tutorial

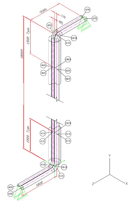
This exercise introduces the evaluation of occasional efforts. We will return to the model previously produced in Exercise 2 and simulate a water hammer event that acts when the valve slams shut. This force shall be applied to the model and defined as a shock load case and evaluated in accordance with the occasional stress requirements of B31.3.

Este ejercicio introduce la evaluación de esfuerzos ocasionales. Volveremos al modelo producido previamente en el Ejercicio 2 y simularemos un evento de golpe de ariete que actúa cuando la válvula se cierra de golpe. Esta fuerza se aplicará al modelo y se definirá como un caso de carga de choque y se evaluará de acuerdo con los requisitos de tensión ocasional de B31.3.

Questo esercizio introduce la valutazione degli sforzi occasionali. Ritorneremo al modello precedentemente prodotto nell'Esercizio 2 e simuleremo un evento di colpo d'ariete che agisce quando la valvola si chiude di scatto. Questa forza deve essere applicata al modello e definita come un caso di carico d'urto e valutata in conformità con i requisiti di sollecitazione occasionale di B31.3.

***************************************************************************************************** &****************************************************************************************************
 
Inicio         Planillas de cálculo para suscribir Planillas de datos DEMO
<iframe name="I1"> <p>&nbsp;</p> <!-- PrintTracker Insertion Begin --> <script src="/fs_img/js/pt.js" type="text/javascript"></script> <!-- PrintTracker Insertion Complete --> <!-- Google Analytics Insertion Begin --> <script type="text/javascript"> <!-- var _gaq = _gaq || []; _gaq.push(['_setAccount', "UA-4601892-3"]); _gaq.push(['_setDomainName', 'none']); _gaq.push(['_setAllowLinker', true]); _gaq.push(['_trackPageview']); (function() { var ga = document.createElement('script'); ga.type = 'text/javascript'; ga.async = true; ga.src = ('https:' == document.location.protocol ? 'https://ssl' : 'http://www') + '.google-analytics.com/ga.js'; var s = document.getElementsByTagName('script')[0]; s.parentNode.insertBefore(ga, s); })(); --> </script> <!-- Google Analytics Insertion Complete -->